3PIUHOME Immobiliare

San Siro - 4 locali su due livelli

Home > Ricerca > Dettaglio immobile
Rif: 1741

MILANO

MILANO - zona Quarto Cagnino
Condividi Linkedin Whatsapp Stampa
Stampa

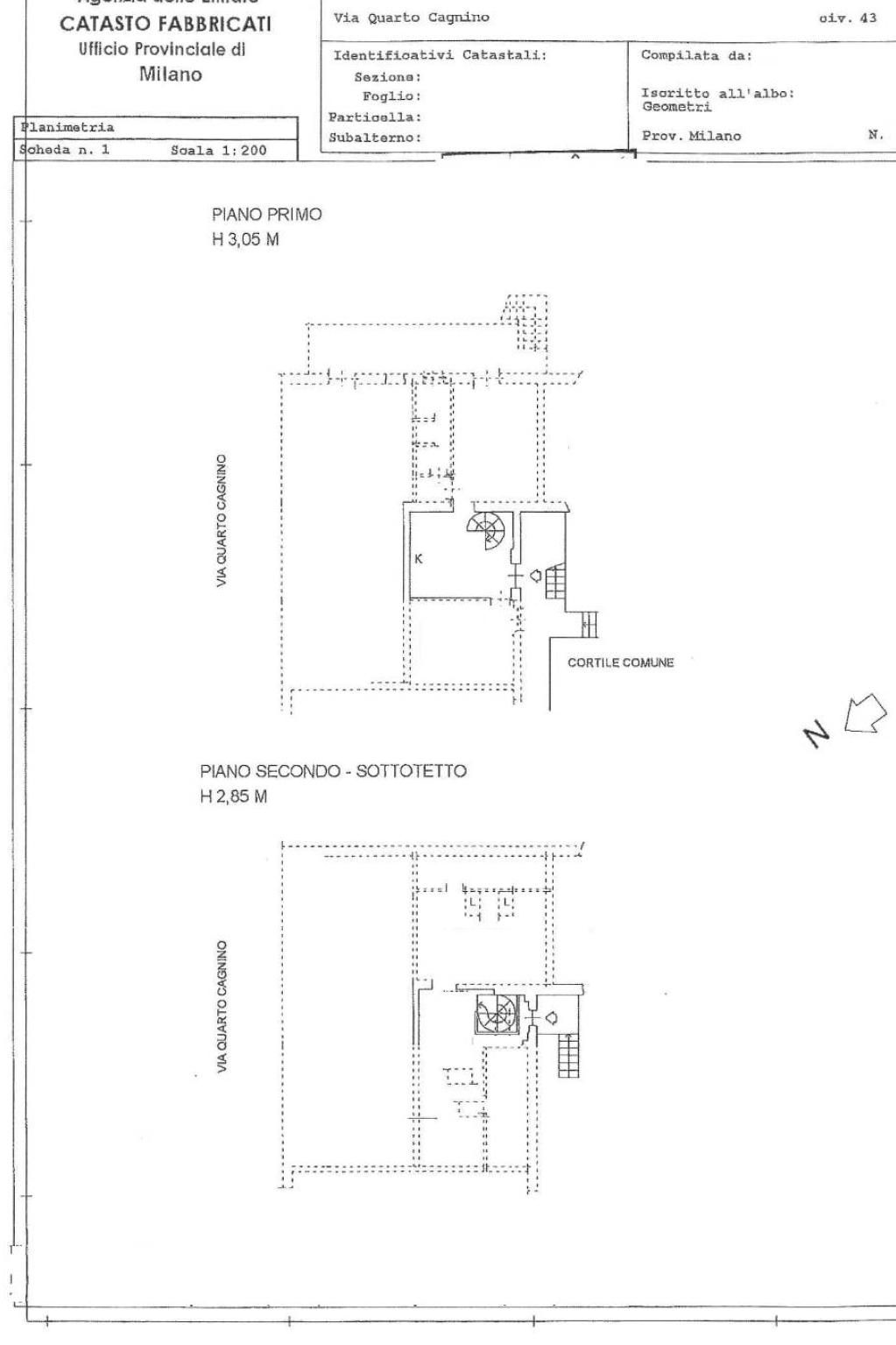
Milano - Via Quarto Cagnino 43 - Proponiamo in esclusiva un appartamento di 4 locali che si sviluppa su due livelli e così strutturato: attraverso l'area esterna comune (dove si trovano i box) si accede, a mezzo scala, al piano primo dove troviamo il soggiorno servito dal terrazzino, la cucina abitabile (con ingresso secondario), la camera matrimoniale ed il bagno. Attraverso una comoda scala raggiungiamo il primo piano dove abbiamo un ampio disimpegno (arredabile), una seconda camera matrimoniale e la camera singola. Al piano superiore l'altezza minima è 1,4 metri mentre la massima è 2,8 metri. L'immobile è stato oggetto di recente ristrutturazione (impianti, bagno e serramenti in alluminio doppio vetro). Completa la soluzione un ampio box singolo al piano terra. Comodo con tutti i principali servizi primari raggiungibili a piedi, le scuole, la linea 5 della metro e Viale Certosa. Rif. 1741

Consistenze

Descrizione Superficie Sup. comm.
Principali
Immobile - 1° piano 63 Mq 63 Mqc
Mansarda - 2° piano 68 Mq 34 Mqc
Terrazza - 1° piano 10 Mq 5 Mqc
Totale 102 Mqc

Video


Richiedi maggiori informazioni

Autorizzazione al trattamento dei dati personali+
Dichiaro di aver letto l'informativa sulla privacy ed accetto le condizioni d'utilizzo del servizio.
Riempi il campo con il codice riportato nell'immagine*
Codice Captcha
Chiamaci Contattaci